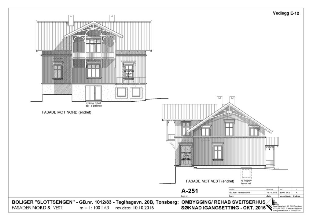
TEGLEHAGEN 20 B. SVEITSER VILLA


Prosjekt Teglhagen 20B – to leiligheter, en med hybel i u-etg. Rett ved Slottsfjellet i Tønsberg er det utviklet leiligheter i en staselig Sveitser villa. Tanken med prosjektet var å opprettholde husets sjarm og originalitet. Samtidig lage leiligheter med moderne standard. Under riving dukket det opp mye gammel historie, helt tilbake, fra huset var nytt på 1800-tallet. Det ble blant annet funnet gamle dokumenter og tidsskrifter i vegger. Alt ble fotografert, og mye ble bevart. Valg av materialer var viktig for å opprettholde det originale "bildet" av huset. Det er brukt originale detaljer, som tømmervegger for å fange husets sjel. Resultatet ble to delikate leiligheter, den ene med utleie del.

ROLLE

Totalentreprenør

BYGGESTED

Tønsberg

ENHETER

2